Лофт — стиль свободных и уверенных людей
Стиль лофт (индустриальный стиль) подразумевает максимум свободного пространства, минимум мебели и некоторую нарочитую грубость и простоту в дизайне, имеющую, однако, особый уют.

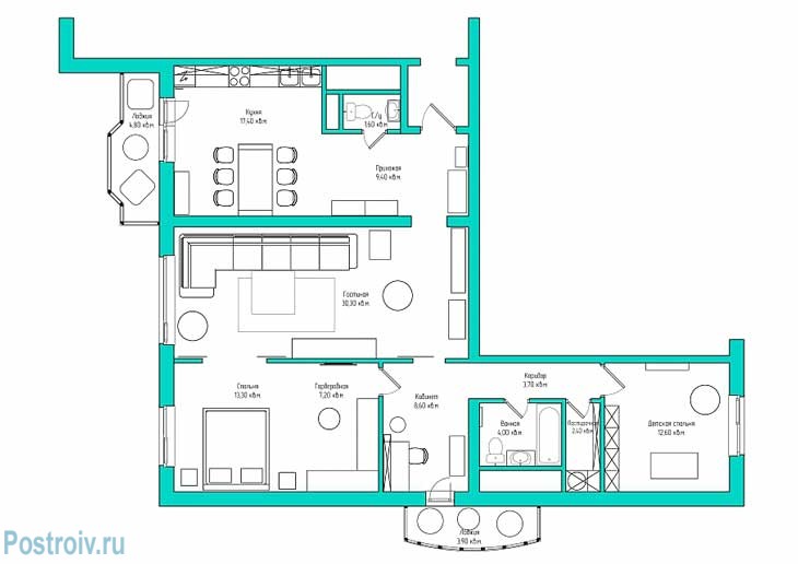
Перепланировка квартиры. Фото
Отделка помещения под стиль лофт
Что предполагает интерьер квартиры в стиле лофт? Имитацию некого заброшенного помещения, чердака, поэтому и отделка должна соответствовать, здесь действует одно правило — чем проще она выглядит, тем лучше.

Спальня в стиле лофт. Дерево на стене. Синие шторы. Фото
Как отделать пол в квартире в стиле лофт
Отлично вписывается в данный стиль простой дощатый пол с деревянным покрытием, желательно светлых тонов, стиль лофт в интерьере квартиры предполагает использование, по большей части, спокойных пастельных тонов и белого цвета. Для усиления эффекта можно покрыть пол лаком с эффектом состаривания дерева.
Кроме того, пол может быть каменным, имитировать каменную кладку или старое бетонное покрытие, как в каком-нибудь заброшенном здании.
Еще один вариант — это отделка пола плиткой, она должна быть простой, однотонной, желательно с матовой поверхностью. Цвета лучше выбирать светлые, например, светло-серый оттенок. Он хорошо впишется в выбранный стиль и является достаточно практичным.

Интерьер белой спальни. Белый кирпич на стенах. Фото


Гардеробная зона в спальне. Фото
Светлый паркет на полу. Фото

Ванная комната в стиле лофт. Фото

Отделка ванной комнаты белым декоративным кирпичом. Фото


Прачечная зона. Фото
Стены. Главное выбрать правильные материалы
Что касается отделки стен, то для этого также лучше использовать простые, естественные материалы.
Довольно много дерева может включать интерьер квартиры в стиле лофт. Деревянная отделка стен будет отлично гармонировать с деревянным полом. Стены могут оставаться в своем первозданном, немного грубом образе, сохраняя необработанный вид.
Также отлично впишутся в стиль лофт стены с отделкой из кирпича или натурального камня. Будут уместны шершавые бетонные стены, которые придадут стилю свойственную ему атмосферу.
Сочетая разные варианты отделки стен, можно зонировать большую квартиру-студию, ведь стиль лофт в интерьере квартиры означает отсутствие всяческих перегородок, тем не менее, как-то обозначить разные зоны нужно, так почему бы не сделать это при помощи отделки?

Подвесное кресло на балконе. Фото

Интерьер 3-комнатной квартиры. Гостиная в стиле лофт. Кирпичная стена и двери купе. Фото

Белый большой диван в гостиной. Сочетание белого цвета и стены из декоративного кирпича. Фото

Декор стены над диваном в гостиной. Фото
Мебельная обстановка
Меньше мебели, больше пространства — вот по какому принципу создается интерьер квартиры в стиле лофт. Поэтому не стоит чересчур загромождать комнату предметами мебели.
Что касается внешнего вида, то мебель должна быть под стать всей обстановке — не слишком вычурной, с простыми строгими линиями, плавными, спокойными цветами. Будет весьма уместна деревянная мебель — например, деревянный столик в гостиной или прикроватные тумбочки из светлого дерева. Кожаная мебель тоже впишется в интерьер, однако не стоит выбирать слишком массивную мебель. В целом, мебель должна оставлять ощущение простоты и легкости, чем-то напоминая стиль минимализма. При этом, стиль лофт спокойно допускает сочетание новомодных современных предметов и старинной мебели.

Интерьер 3-комнатной квартиры в стиле лофт. Кухонная зона. Фото

Обеденная зона. Прямоугольный светлый стол и черные стулья. Зеленые светильники. Фото

Отделка стен на кухне под бетон. Стиль лофт. Фото
Освещение в квартире
В помещениях освещение должно быть в меру ярким. Для этого можно использовать, по необходимости, одну или несколько потолочных ламп. Также будут нелишними небольшие настенные светильники — их можно включать как вместе с лампой, чтобы ярче осветить часть комнаты, так и отдельно, для создания уютной полутемной атмосферы. Кроме того, сами по себе, необычно оформленные люстры, станут дополнительным аксессуаром.

Кабинет для работы в стиле лофт. Фото

Аксессуары и декор в стиле лофт
Завершающий штрих — аксессуары. Можно разнообразить интерьер квартиры в стиле лофт современными постерами на стенах, которые будут органично смотреться в деревянных рамах. В подобную же раму можно поместить зеркало. Фото в рамках можно также использовать для декора. Интересный вариант — большая штора-занавес для разделения пространства, при ее помощи можно отделить спальную зону от основной части квартиры. Для контраста со светлым оформлением, занавес можно выбрать в темных тонах, это будет своеобразным акцентом в дизайне.

Детская комната для маленького ребенка в стиле лофт. Фото

Грифельная доска в детской в виде камина. Фото

Декорирование стены над кроваткой в детской. Фото

Отделка коридорчика белым кирпичом. Фото
Все фото данного проекта




























