Главная задача при оформлении небольших квартир – сохранить свободное пространство. Для дизайна квартир 50 кв. м подходят современные стили – минимализм, эко-минимализм, лофт. Здесь используются простые геометрические формы, однотонные поверхности, многоуровневое освещение.

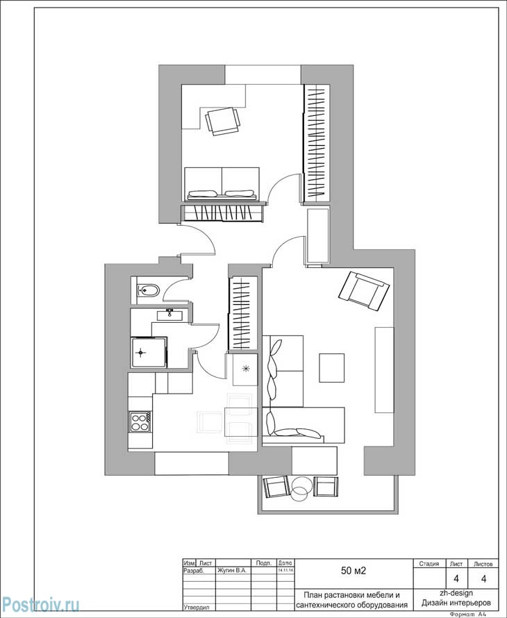
Дизайн проект будущей квартиры — Фото
Оформление коридора
В узком коридоре предпочтительно обойтись без изысков, а стены оформить декоративной штукатуркой или обоями с подобным эффектом. Отделка в светлых оттенках коричневого и мебель более темных тонов будут выгодно сочетаться и сделают минималистичный интерьер более теплым, домашним.
Подвесной потолок со скрытой подсветкой наполнит прихожую таинственным сиянием и создаст иллюзию объемного пространства. Не стоит забывать о потолочных светильниках – полумрак уместен не всегда.
Встроенные модели лучше всего подойдут для дизайна квартир 50 кв. м с невысокими потолками.

Дизайн узкого коридора в двухкомнатной квартире — Фото

Коридор после ремонта, двери шпон цвета венге — Фото
Дизайн коридора в светлых тонах — Фото
Кухня
Эти же дизайнерские ходы можно применить и при оформлении кухни: встроенные в потолок светильники, светлые бежевые поверхности без декора.
Широкая вертикальная полоска на обоях визуально «поднимет» потолок, а зеркальные дверцы металлического холодильника сделают его практически невидимым. Вместо жалюзи и штор – легкий полупрозрачный тюль: так кухня станет гораздо светлее.
Угловая кухня с глянцевыми белыми фасадами и подсветкой над рабочей поверхностью позволит готовить, не сходя с места. Квадратный стол темного дерева – цветовой и смысловой акцент кухни. Стол легко задвинуть в угол, если обедают 1-2 человека.

Угловая кухня с глянцевыми фасадами — Фото

Дизайн кухни 7,8,9 кв.м. в белом цвете — фото

Кухня в 2-х комнатной квартире после ремонта с деревянным обеденным столом — Фото
Дизайн спальни в квартире 50 кв.м.
Дизайн квартир 50 кв. м предполагает, что одна комната выступает в разных ипостасях. Так, спальня может быть кабинетом и гардеробной одновременно. Здесь важно разграничить эти области, предусмотрев для каждой собственное освещение (желательно подобрать светильники разных моделей, но в одном стиле).
Не забывайте о ненавязчивом общем освещении – можно использовать вариант прихожей со скрытыми и встроенными источниками света.
Отсутствие декора легко компенсировать фактурными стеновыми панелями, декоративной штукатуркой, одной – но привлекающей внимание – картиной. Удачный трюк – занавесить окно тюлем, а оставшиеся по бокам участки стены – шторами. Это создаст иллюзию, что в комнате вместо стены – большое панорамное окно, частично закрытое шторой.

Дизайн спальни с декоративным оформлением стен — Фото

Простое зонирование спальни на кабинет и диванную — Фото

Дизайн спальни — Фото

Дизайн спальни — Фото
Оформление гостиной
Если душа требует экспериментов, лучше всего приберечь их для оформления гостиной. Здесь к общей двухцветной гамме можно добавить яркие пятна – необычное кресло, диванную подушку (главное, не переборщить). Экстравагантная люстра тоже украсит минималистичный интерьер.
Еще одну кофейную зону можно устроить на балконе. Тут же найдется место бытовым мелочам – сушилке для одежды, гладильной доске и т.д.

Фото гостиной

Фото гостиной

Фото гостиной

Фото гостиной

Оформление балкона в светлых тонах — Фото

Оформление балкона в светлых тонах — Фото
Небольшой санузел — дизайн
А вот в небольшом санузле лучше отказаться от ярких цветов и остановиться на белом глянце. Как вариант – сделать черную акцентную стену за унитазом, чтобы создать эффект глубокого тоннеля.
Особое внимание в дизайне квартир 50 кв. м уделяется грамотному расположению сантехники. Если заменить ванную на душевую кабину, рядом поместится стиральная машина. Можно объединить ее с раковиной и тумбой под одной панелью и получить что-то вроде функционального углового столика.

Оформление ванной с душевой кабиной и стиральной машиной — Фото

Дизайн ванной с большим зеркалом — Фото

Подвесной унитаз в узком туалете — Фото
Конечно, при оформлении квартиры многое зависит от планировки. Но общие правила действуют всегда: не используйте больше трех цветов, заменяйте декор на выразительные фактуры, грамотно расставляйте мебель и уделяйте внимание освещению