Белоснежный, но практичный дизайн квартиры студии 40 кв. м. в скандинавском духе подойдет для динамичной молодой пары, позволяя проводить свободное время вместе и не мешать друг другу в часы работы.

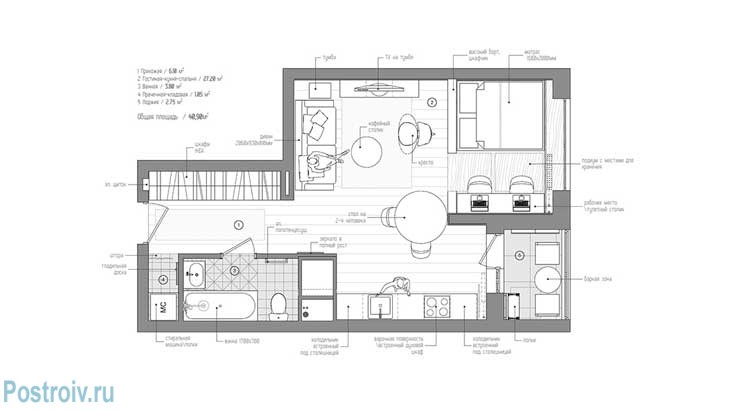
Планировка квартиры студии 40 кв. м. Фото
Как увеличить площадь квартиры — функциональные приемы
Светлая гамма отделки выбрана неслучайно – она поможет визуально расширить пространство, сделает его воздушнее и свободнее. Часть перегородок между комнатами можно убрать, задействовав освободившееся место. Четкое функциональное зонирование – вот, что позволит грамотно распределить мебель, обозначить спальню, кухню, столовую, гостиную и найти место для рабочей области в квартире-студии.
Интерьер однокомнатной квартиры для молодой семьи
Кабинет и спальня – два в одном
Кровать удобнее всего поставить на деревянный подиум, в котором легко вместятся комплекты постельного белья и часть одежды. Напротив можно расположить импровизированный узкий стол вдоль стены, за которым поместятся два ноутбука и два стула. Всю спальную и рабочую зону объединяет молочно-кофейная и светло-серая гамма: обои, ламинат, светильники, шторы нужно подобрать в этих тонах.

Зона спальни в студии. Фото

Как разделить зону спальни и рабочее место в студии. Фото
Место для встречи гостей и отдыха
Часть убранной перегородки позволила гостиной расположиться перпендикулярно спальне, захватив при этом часть коридора. Спальня и гостиная в однокомнатной квартире подчеркнуто разделены еще и направлением досок натурального дерева светлых пород, использованных для напольного покрытия. Мягкий серый диван правильной геометрической формы и округлое кресло создают некий дисбаланс, который уравновешивают декоративные детали: подушки шоколадного и мятного цвета, обивка кресла и боковые панели шкафчиков яркого аквамаринового тона. Акцентом служит черно-белый прямоугольный коврик.
Между гостиной и кухней нашлось место для столовой зоны, представленной круглым столиком и парой стульев молочной гаммы. Кухонную стену контрастного черного цвета можно очень интересно использовать. Для этого на ней достаточно закрепить маленькие горшочки с ароматными травами и емкости со специями. Такие же горшочки будут хорошо смотреться и на полочках лоджии напротив кофейного столика.
Зона кухни и столовой. Скандинавский стиль в интерьере студии

Гостиная зона. Скандинавский и минималистический стили. Фото

Функциональное решения для балкона. Барная зона. Фото
Санузел с секретом
Небольшая гардеробная, обустроенная в коридоре, вместит зимние вещи и обувь. Находящийся напротив санузел имеет совершенно лаконичную отделку в черно-белой палитре. Его изюминкой является прачечная комнатка, в которой нашлось место не только для стиральной машинки, но и для сушилки, гладильной доски и функциональных полочек.

Прачечная зона в квартире 40 кв. м. Фото
Сдержанный дизайн квартиры площадью 40 кв. м., выполненный в контрастных тонах, смотрится стильно и современно, при этом вмещает все необходимые элементы мебели и декора.
Полная фотогалерея интерьера







