Содержание:
- Определяем место расположения будущего шкафа
- Чертежи и схемы
- Материалы
- Подготовительные работы
- Сборка шкафа купе
- Видео инструкция по сборке
В данной статье хочу рассказать как сделать встроенный шкаф купе своими руками. Процедура достаточно трудоемкая так, что читайте все тщательно и строго следуйте инструкциям.
Если в вашей квартире все имеющиеся шкафы и комоды уже заняты, но при этом существуют вещи, которые требуется где-либо разместить, самым оптимальным вариантом решения данной проблемы будет изготовление своими руками встроенного шкафа купе. Тем более, что самостоятельное изготовление мебели обойдется гораздо дешевле, чем ее приобретение в магазине или выполнение по индивидуальному заказу.
Определяем место расположения шкафа
Первоначально следует определиться с местом, в котором будет располагаться встроенный шкаф-купе. В современных интерьерах часто предусматривается ниша из гипсокартона под встроенный шкаф. Так же пожно сделать шкаф во всю стену, он получится тоже встроенный.
Если вы делаете не встроенный шкаф купе, то ничего вырезать в стенах не нужно.
Чертежи и схемы
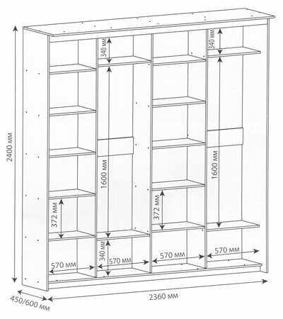
Затем, исходя из размеров ниши, ее длины, ширины и глубины, нарисовать эскиз (чертеж) будущего шкафа-купе. В данном документе должны быть учтены такие моменты, как количество секций, количество полок, расстояния между полками, ширина и высота секций, а также предусмотреть наличие дополнительных опций, как, предположим, мини-бар или ниша для телевизора. Смотрите некоторые чертежи шкафов купе, сделанных своими руками.
- Фото 1. Чертеж среднего шкафа купе
- Фото 2. Чертеж узкого шкафа купе
- Фото 3. Чертеж шкафа купэ
- Фото 4. Чертеж шкафа купэ
- Фото 5. Чертеж шкафа купэ
- Фото 6. Чертеж шкафа купэ
Необходимые материалы
После того как чертеж шкафа готов, необходимо рассчитать количество необходимого материала и мебельной фурнитуры и приобрести все необходимое в специализированных магазинах. Кстати, многие точки, продающие ДСП (материал для изготовления дверей, стен) могут выполнить разрезание целого листа ДСП по указанным заказчиком размерам. Таким образом, вы получите заготовки дверей, стен и полок будущего встроенного шкафа-купе.
Если вы хотите зеркальные или стеклянные двери для будущего шкафа купе, то заказывать придется их заранее, вряд ли в магазине найдутся заготовки с вашими размерами.
Кроме всего прочего, вам понадобится роликовая система и фурнитура (ручки, крепежи, заклепки, уголки). Благо на строительном рынке их огромное количество.
Подготовительные работы
Перед началом работ, связанных со сборкой шкафа купе, пространство ниши следует подготовить самым тщательным образом. Подготовка заключается в выравнивании всех стен, пола и потолка ниши.
Выравнивание выполняется соответствующими строительными смесями, предназначенными для шпаклевки. Они готовятся согласно инструкций заводов изготовителей, а затем посредством шпателя накладываются на поверхности, требующие выравнивания.
После высыхания шпаклевки, выровненные поверхности следует обработать антисептическими составами, при желании, стены ниши можно покрасить водоэмульсионной краской, имеющей такой же цвет, как у ДСП будущего шкафа-купе.
Сборка шкафа купе
Собрать шкаф купе своими руками достаточно просто. Монтаж начинается с установки листа ДСП, выполняющего функцию пола конструкции. Его установка требует тщательного выравнивания, так как от точности его горизонтального положения зависит внешний вид всей будущей конструкции. Горизонтальность проверяется посредством строительного уровня, при необходимости в нужные места вставляются деревянные подставки соответствующих размеров.
После того как нижний лист установлен следует приступать к монтажу боковых стен и перегородок различных секций. Все эти конструктивные элементы крепятся к нижнему листу посредством уголков и саморезов. Уголки лучше выбрать металлические так, как они прочнее пластмассовых.
Этап сборки основы конструкции заканчивается установкой верхнего листа ДСП, который крепится к торцу боковых стен и перегородок секций теми же уголками и саморезами. После того, как собрана коробка будущего шкафа, ее следует вставить в нишу и закрепить к ее стенам. Для этого потребуется усилие нескольких человек, которые поместят основу шкафа в заранее подготовленное место с идеально горизонтальной нижней плоскостью.
Закрепление конструкции к боковым стенам выполняется посредством сверления отверстий в боковых стенах шкафа и части стены ниши и последующей фиксации посредством дюбелей соответствующего размера.
На следующем этапе следует выполнить размещение горизонтальных полок в соответствии с разработанным ранее эскизом шкафа купе. Вообще-то, установку горизонтальных элементов можно выполнить двумя способами.
- Первый способ более трудоемкий и продолжительный по времени, он предусматривает установку полок в тело конструкции после того, как она уже закреплена в проеме ниши. В этом случае к боковым стенкам и вертикальным перегородкам в требуемом месте закрепляются мебельные уголки, предназначенные для поддержки полок, и на них устанавливаются сами полки.
- Второй способ предусматривает выполнение необходимого количества отверстий в боковых стенах и вертикальных перегородках, а также отверстий в торцах боковых элементов, до начала сборки основы. Полки устанавливаются на свои места посредством соединения паз-шип, операция выполняется на этапе сборки основы. Это способ гарантирует более высокую точность установки полок, однако в этом случае общий вес конструкции значительно увеличивается и, соответственно, при размещении основы в проеме ниши потребуются усилия большего количества человек, чем при установке основы без полок.
Какой способ более предпочтительный – дело вашего выбора.
Далее, предстоит установка зеркальных движущихся дверей на направляющие. Направляющие и подвижные ролики следует приобрести в магазине, занимающемся продажей мебельных аксессуаров. Из цельной полосы направляющей, приобретенной в магазине, следует вырезать две полосы необходимой длины для последующего закрепления внизу и вверху основы шкафа. Крепление выполняется с учетом параллельности этих элементов, посредством саморезов.
Теперь о дверях. Двери, как и все остальные элементы, могут быть вырезаны из цельного листа по соответствующим размерам на этапе приобретения исходным материалов. Зеркало необходимого размера на поверхности двери закрепляется при помощи средства, называемого «жидкие гвозди для поверхности зеркал». Думаю, не стоит говорить о том, чтобы зеркало было закреплено ровно.
Подвижные ролики, предназначенные для движения двери по направляющей, закрепляются в определенных местах двери – в ее нижней и верхней части на саморезы. После того как все двери подготовлены, они имеют зеркала и ролики, следует выполнить их установку на основу.
Таким образом, в процессе изготовления шкафа-купе собственными руками нет ничего сложного. Все что для этого надо, это фантазия, наличие навыков работы со столярными инструментами и огромное желание.
Шкаф купе своими руками видео
Еще один способ устройства шкафа купе. Видео





